Продается участок Сумская, Сумы, Заречный, Козацький пр-т (№ 26-156-545)
Цена: 56 500 $

Характеристики
| Цена: | 56 500 $ | 
|---|---|
| № объекта: | 26-156-545 | 
| Назначение: | под жилую застройку | 
| Площадь: | 71.56 сот | 
| Дополнительно: | есть пути подъезда | 
Адрес: Сумская, Сумы, Заречный, Козацький пр-т
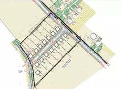
Продається унікальна земельна ділянка для будівництва житла!
Ділянки з 1 по 7
Площа — 71,56 сотки
Ідеально підходить як для масштабного будівництва, так і для реалізації кількох окремих проектів — можливий продаж частинами.
Затверджений детальний план території під забудову — всі документи в порядку і готові для продажу.
Розташування, яке закохує з першого погляду:
Чудова природа, неймовірні краєвиди, тиша та водночас зручне розташування — ідеальне місце для життя чи інвестиційного проекту. Поруч Козацький проспект. Забудовані ділянки.












 domin.sumy.1@gmail.com
 domin.sumy.1@gmail.com
