Сдается офис Воскресенська, 13 а, Сумы, Сумская, Ковпаковский (№ 1-495-629)
Цена: 8 100 грн. + коммунальные

Адрес: Воскресенська, 13 а, Сумы, Сумская, Ковпаковский
Характеристики
| Цена: | 8 100 грн. + коммунальные |
|---|---|
| № объекта: | 1-495-629 |
| Тип: | административное здание |
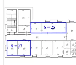
| Площадь: | 27 м2 |
| Кабинетов: | 1 |
| Этаж: | 2 / 3 |
| Дополнительно: | парковка |
Описание
Офісні приміщення розташовані на 2-му поверсі.
Опалення індивідуальне газове. Закритий двір, парковка. В будівлі знаходиться відділення Нової Пошти №6, офіси великих компаній.
Площа під оренду: 2 поверх, 25,27 м2
Ціна 300 грн / м2
Комунальні платежі: компенсуються окремо
Вартість послуг - 50% від місячної орендної плати










