Сдается офис Сумская, Сумы, Ковпаковский, Кондратьєва/Кірова, 20 (№ 1-495-354)
Цена: 45 000 грн. + коммунальные

Характеристики
| Цена: | 45 000 грн. + коммунальные |
|---|---|
| № объекта: | 1-495-354 |
| Тип: | бизнес центр |
| Площадь: | 450 м2 |
| Этаж: | 2 / 6 |
| Дополнительно: | кондиционер, парковка |
Адрес: Сумская, Сумы, Ковпаковский, Кондратьєва/Кірова, 20
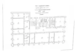
Власник пропонує в оренду поверх офісних приміщень з кабінетним плануванням загальною площею 450м2
Кабінети від 20 до 80м2, 4 вбиральні на поверсі, 3 провайдери інтернету, оптоволокно, парковка у власному дворі, лінія безперебійного живлення електроенергії, сигналізація, відеоспостереження, охорона. В будівлі є бомбосховище.
Адреса вул. Герасима Кондратьєва, 20 (Кірова).
Ціна 45000грн+ комунальні
без комісії












