Продается квартира Сумская, Сумы, Заречный, Лушпи, 31 (№ 213-135-194)
Цена: 20 000 $

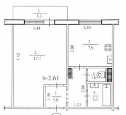
Характеристики
| Цена: | 20 000 $ |
|---|---|
| № объекта: | 213-135-194 |
| Комнат: | 1 разд |
| Этаж: | 1 / 9п |
| Площадь: | 35,19 / 17,7 / 7,9 м2 |
| Санузел: | 1 раздельный |
| Балкон: | балкон |
Адрес: Сумская, Сумы, Заречный, Лушпи, 31
Продам однокімнатну на 1 поверсі в ідеальному місці.
Поруч є всі зручності .
Водопровід: новий зі стояками, труби ПП.
Сантехніка: нова.
Лічильники: газ, вода, електрика.
Опалення: централізоване.
Меблювання: +.
Косметичний ремонт.
Всі нові вікна та балконний блок.
Стан: заходьте і живіть.








