Продается квартира Сумская, Сумы, Заречный, ЖК Айсберг-2,вул ЗСУ (№ 213-110-261)
Цена: 42 000 $

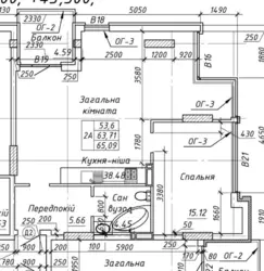
Характеристики
| Цена: | 42 000 $ |
|---|---|
| № объекта: | 213-110-261 |
| Комнат: | 1 разд, студия |
| Этаж: | 9 / 16 лифт |
| Площадь: | 65 / 15,12 / 38,5 м2 |
| Санузел: | 1 совмещенный |
| Балкон: | балкон |
| Дополнительно: | новостройка |
Адрес: Сумская, Сумы, Заречный, ЖК Айсберг-2,вул ЗСУ
Продам квартиру, власник, стан від забудовника,дім введений в експлуатацію,переоформлення. 65м2
Дім монолітно-каркасний,що унеможливлює тріщини від просадки, кирпич пустотілий з утепленням 100мм














