Продается квартира Сумская, Сумы, Ковпаковский, Р Атаманюка (№ 212-961-261)
Цена: 24 900 $

Характеристики
| Цена: | 24 900 $ |
|---|---|
| № объекта: | 212-961-261 |
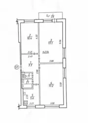
| Комнат: | 3 разд |
| Этаж: | 2 / 5 |
| Площадь: | 63,3 / 44,7 / 5,6 м2 |
| Санузел: | 1 раздельный |
| Балкон: | балкон |
Адрес: Сумская, Сумы, Ковпаковский, Р Атаманюка
Трикімнатна квартира від Власника на вулиці Атаманюка (40 р. Жовтня).
Загальна площа 63.3 м.кв, житлова площа 44,7 м.кв. Є балкон та підвальне приміщення. Поруч декілька дитячих садків, дві школи, курський ринок, ЦНАП та ЖЕК у сусідній будівлі.
Квартира жила але потребує ремонту
Реальному покупцеві торг
06*********43












