Продается квартира Сумская, Сумы, Заречный, Еспланада,Лушпи, 5, корп 24/2 (№ 212-952-130)
Цена: 20 500 $

Характеристики
| Цена: | 20 500 $ |
|---|---|
| № объекта: | 212-952-130 |
| Комнат: | 1 разд |
| Этаж: | 1 / 14 |
| Площадь: | 47 / 20 / 15 м2 |
| Санузел: | 1 совмещенный |
| Балкон: | балкон |
| Дополнительно: | новостройка |
Адрес: Сумская, Сумы, Заречный, Еспланада,Лушпи, 5, корп 24/2
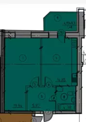
Квартира 47кв.м. в центре города. Пр.Лушпы 5,корпус 24/2. Высокий 1 этаж. Большой балкон (можно достроить). По необходимости подвал 3 кв.м. (с документами). Окна выходят на реку. Большая комната с альковом 20 кв.м. Кухня 15 кв.м. Планировка на фото. В доме крышное отопление. Счетчик тепла на каждую квартиру, поэтому погоду дома делаете Вы. Состояние от застройщика. Сдача дома 2024 год. Дом достроен. В данный период выполняется остекление. Продажа по переуступке. Тел. +38********65 Геннадий Детали: Окна Устанавливаются окна 5-ти камерной системы марки Wintech. Балконы и лоджии застеклены. Двери Устанавливаются входные металлические двери Штукатурка стен Выполняется штукатурка всех помещений, кроме ванной комнаты и санузла Стяжка Цементная стяжка под чистый пол, кроме ванной комнаты и санузла Медная электропроводка с разводкой под электроплиты. Мощность электроэнергии на квартиру 12 кВт Отопление Крышная котельная с поквартирными счетчиками тепла Водоснабжение Устанавливается система водоснабжения, канализации, электроснабжения. Выполняется монтаж бойлера. Счетчики Устанавливаются счетчики воды, электроэнергии, тепла (поквартирно). Возможен обмен на дом. +38********65








