3-кімнатна новобудова на Лушпи ЖК Еспланада (№ 212-894-070)
Цена: 55 000 $

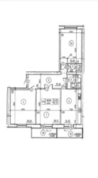
Характеристики
| Цена: | 55 000 $ |
|---|---|
| № объекта: | 212-894-070 |
| Комнат: | 3 разд |
| Этаж: | 9 / 10 |
| Площадь: | 96 / - / 15 м2 |
| Санузел: | 1 раздельный |
| Балкон: | балкон |
| Дополнительно: | новостройка |
Адрес: Сумская, Сумы, Заречный, Лушпи ЖК Еспланада, 5 корп 6
Продам 3 к квартиру пр-т. Лушпи 5 корпус 6 на 9 поверсі 10 поверхового будинку. Гарне розташування будинку. Стан новобудови. Площа 96 м2. Хороше планування, квартира не кутова, в середині будинку. Встановлено котел, батареї, прилади обліку, вікна, вхідні двері, чорнова штукатурка стін, залита підлога. Зроблено покращену електропроводку по всій квартирі. Наразі можливий продаж по переуступці - 55000 $.




