Продается квартира Сумская, Сумы, Заречный, Заливна вул. (№ 212-689-691)
Цена: 665 233 грн.

Характеристики
| Цена: | 665 233 грн. |
|---|---|
| № объекта: | 212-689-691 |
| Комнат: | 1 разд |
| Этаж: | 9 / 9 лифт |
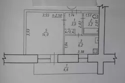
| Площадь: | 29 / - / 6 м2 |
| Санузел: | совмещенный |
| Балкон: | балкон |
Адрес: Сумская, Сумы, Заречный, Заливна вул.
Продам квартиру по вул. Заливная
29 м кВ.
9 поверх, дах перекритий
Ремонт, двері нові, проводка нова, у під'їзді відеоспостереження. Є приміщення для велосипедів, та колясок. Вікна пластикові, сусіди дружні.
Поруч школа, дит.садок, річка.








