Продается квартира Сумская, Сумы, Ковпаковский, Троїцька (№ 212-668-962)
Цена: 16 700 $

Характеристики
| Цена: | 16 700 $ |
|---|---|
| № объекта: | 212-668-962 |
| Комнат: | 1 разд |
| Этаж: | 1 / 1 |
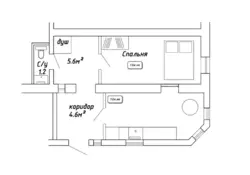
| Площадь: | 36,6 / - / 12 м2 |
| Санузел: | 1 раздельный |
| Балкон: | нет |
Адрес: Сумская, Сумы, Ковпаковский, Троїцька
Однокомнатная квартира недалеко от гимназии находиться в тихом уютном дворике с небольшим полисадником и местом для авто. Есть бетоная площадка перед входом, можно оборудовать навесом и обустроить место для барбекю. Планировка не стандартная т.к. кухня и входной коридор это современая достройка из газоблока с утеплением роквул фронт макс и энергосберегающими окнами. Остальное здание кирпичное. Комуникации централизованы. В хорошем жилом состоянии, можно приехать и ничего не делать.Площадь 36,6, кухня 12м кв., комната 12м .кв, высота потолков 2,8м. Два коридора, входной в форме квадрата на 4м.кв. и внутрений - в котором поставлена душ кабина. Туалет в своем отдельном помещении. Более всего подойдет одному, паре, пенсионерам, т.к. свободый выход на свежий воздух, без пандусов и ступеней.













