Продается квартира Сумская, Сумы (№ 212-114-553)
Цена: 51 000 $

Характеристики
| Цена: | 51 000 $ |
|---|---|
| № объекта: | 212-114-553 |
| Комнат: | 2 разд |
| Этаж: | 8 / 14 лифт |
| Площадь: | 67,5 / - / 16 м2 |
| Санузел: | совмещенный |
Адрес: Сумская, Сумы
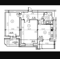
Продам 2-х комнатную квартиру, общей площадью 67, 47 м. кв. по адресу проспект Лушпы, 24/2, 8 этаж 14-ти этажного дома, комплекс Эспланада.
Дом кирпичный, утепление базальтовая вата, отдельное автономное отопление для всего дома, современная планировка, два лифта, панорамные окна, электрическая плита, застройщик Сумбуд.
Количество комнат 2
Общая площадь 67.47 м2
Жилая площадь 34.9 м2
Кухня 16.00 м2
Гостиная 18.00 м2
Спальня 16.00 м2
Санузел (совмещ.) 5.00 м2
Коридор 9.00 м2
Количество балконов 1 шт
Окна
Устанавливаются окна 5-ти камерной системы. Балконы и лоджии
застеклены моностеклом толщиной в 4 мм
Двери
Устанавливаются входные металлические двери
Штукатурка стен
Выполняется штукатурка всех помещений, кроме ванной комнаты и санузла
Стяжка
Цементная стяжка под чистый пол, кроме ванной комнаты и санузла
Электричество
Медная электропроводка с разводкой под электроплиты.
Отопление
Крышная котельная с поквартирными счетчиками тепла
Водоснабжение
Устанавливается система водоснабжения, канализации, электроснабжения.
Выполняется монтаж бойлера.
Счетчики
Устанавливаются счетчики воды, электроэнергии, тепла (поквартирно).




