Продается квартира Сумская, Сумы, Заречный, проспект М. Лушпы (№ 211-830-631)
Цена: 26 500 $

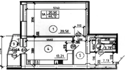
Характеристики
| Цена: | 26 500 $ | 
|---|---|
| № объекта: | 211-830-631 | 
| Комнат: | 1 разд | 
| Этаж: | 6 / 11 лифт | 
| Площадь: | 46 / - / 13 м2 | 
| Санузел: | 1 совмещенный | 
| Балкон: | балкон | 
| Дополнительно: | новостройка | 
Адрес: Сумская, Сумы, Заречный, проспект М. Лушпы
Продам однокомнатную квартиру в новострое в жилом комплексе 'Эспланада' (проспект М. Лушпы). В квартире выполнена цементная стяжка и штукатурка во всех помещениях, кроме ванной комнаты. Установлены счётчики воды, газа и электроэнергии. Установлен двухконтурный котёл индивидуального отопления. Также имеется комната в подвальном помещении размером 3 кв.м.






