Продается квартира Сумская, Сумы, Заречный, Засумская 10а (№ 211-748-167)
Цена: 65 000 $

Характеристики
| Цена: | 65 000 $ | 
|---|---|
| № объекта: | 211-748-167 | 
| Комнат: | 3 | 
| Этаж: | 7 / 10 лифт | 
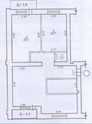
| Площадь: | 91 / - / 13 м2 | 
| Санузел: | 1 совмещенный | 
| Балкон: | балкон | 
Адрес: Сумская, Сумы, Заречный, Засумская 10а
Засумская 10А. Шикарная 3 комнатная квартира-студия, 91м на седьмом этаже. Просторные большие комнаты. Большой санузел с душевой кабиной и акриловой ванной 150*150. Автономное отопление с программированным терморегулятором, теплые пол, утеплена снаружи по периметру пенопластом(100мм), внутри изовер + гипсокартон, очень теплая и экономная (толщина стены 80-86см)- что подтверждается платежками, две бронированные входные двери, двухтарифный электросчетчик, современный видеодомофон, видеонаблюдение, сигнализация, кондиционер, спутниковое телевидение, большая еврокладовка в подвале, кладовка между этажами, ремонт, мебель. Огороженный закрытый на домофон двор с детской площадкой, фруктовыми деревьями и зоной отдыха (деревянная беседка), парковочные места (бесплатно), тихие хорошие соседи (не квартиранты, не посуточно!), большой лифт. Рядом центральный рынок и Евробазар (всегда свежие продукты питания).

















