Продается объект Сумская, Сумы, Ковпаковский, район стадіону Авангард (№ 2-494-877)
Цена: 65 000 $

Характеристики
| Цена: | 65 000 $ |
|---|---|
| № объекта: | 2-494-877 |
| Тип: | объект сферы услуг, прочее |
| Этаж: | 1 / 1 |
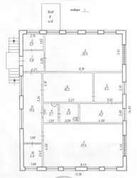
| Площадь: | 100 м2 |
| Дополнительно: | отдельный вход |
Адрес: Сумская, Сумы, Ковпаковский, район стадіону Авангард
Продам нежитлову будівлю в районі стадіону Авангард.
Окремий одноповерховий будинок площею 100 м² з прибудинковою територією та підвалом.
Стіни будинку з дерев'яного брусу, обкладеного цеглою. Перекриття дерев'яні. Прибудова з цегли.
Стан будівлі - під реконструкцію.
Комунікації - опалення, вода, каналізація, газ - централізовані.
Земельна ділянка площею 9 соток, є кадастровий номер.
Гарний асфальтований під'їзд, розвинена інфраструктура середмістя.
Під клініку, заклад сімейної медицини, центр розвитку, приватну школу тощо.
Потрібна додаткова інформація?
Телефонуйте!
Алла Джалілова
АН ПОЗИТИВ






