Продается объект Сумская, Сумы, Ковпаковский, Псільська (№ 2-494-281)
Цена: 75 000 $

Характеристики
| Цена: | 75 000 $ |
|---|---|
| № объекта: | 2-494-281 |
| Тип: | объект сферы услуг, прочее |
| Этаж: | 2 / 2 |
| Площадь: | 160 м2 |
Адрес: Сумская, Сумы, Ковпаковский, Псільська
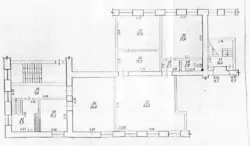
Продам офісні приміщення площею 160 кв.м, розташовані на 2-му поверсі двоповерхової будівлі на вул. Псільській.
До складу приміщення входять шість кабінетів різної площі, санвузол, кімната відпочинку з кухнею, декілька зручних комор.
Бонус - додаткові приміщення під дахом, обладнані під тренажерний зал з окремим санвузлом, душем та пральною машиною.
Водопостачання та каналізація централізовані.
Опалення всієї будівлі здійснюється за рахунок твердопаливного котла.
Зручний під'їзд, тихий район, місця для паркування авто.
Розглядаємо різні форми оплати.









