Биль Боу (№ 2-476-249)
Цена: 670 000 $

Характеристики
| Цена: | 670 000 $ | 
|---|---|
| № объекта: | 2-476-249 | 
| Тип: | кафе, бар, ресторан | 
| Этаж: | 3 / - | 
| Площадь: | 2250 м2 | 
Адрес: Сумская, Сумы, Ковпака вул., 13
Отдельно стоящее здание коммерческого назначения находится по адресу г. Сумы, ул. Ковпака,13. Это густонаселенный микрорайон с оживленным трафиком, хорошо развитой транспортной развязкой.
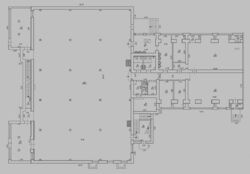
Помещение ранее использовалось как спортивно-развлекательный комплекс - боулинг, бильярд, ночной клуб, ресторан. Может быть использовано как торговое учреждение, автосалон, офисный центр, дом быта и сервисный центр, учебный комбинат, культурно-развлекательный комплекс, медицинский центр. Свободная планировка, минимум перегородок и разделительных стен, что дает возможность эффективного размещения и планирования помещений.
Цокольный этаж 600 м, высота потолков 240-260 см, водоснабжение, канализация, туалеты, приток-вытяжка, два отдельных входа - парадный и служебный. Стоимость 150$ за метр. Первый этаж 900 м, этаж состоит из торгового зала 600 м с высотой потолков 380 см и вспомогательных помещений 300 м с высотой потолков 260 см, три отдельных входа, рампа для разгрузки товара, вода, канализация, туалеты, сигнализация. Стоимость - 400$ за метр. Второй этаж представляет собой большой зал 600 м без колонн и перегородок, высота потолков от 3 до 4,2 метров, несколько помещений свободного использования, помещение по тепловой насос, туалеты и курилка, площадь этажа 760 м, стоимость 300S за метр.
Своя парковка. Видеонаблюдение. Пультовая охрана. Электричество - 3 фазы, 118 кВт. Автономное отопление - тепловой насос.
Помещение продается либо целиком, либо поэтажно. Можно обсуждать вариант долгосрочной аренды.
Звоните 09******70 или пишите в Вайбер








 domin.sumy.1@gmail.com
 domin.sumy.1@gmail.com