Сдается объект Сумская, Сумы, Ковпаковский, Революції Гідності / Супруна, 21 (№ 15-118-885)
Цена: 23 000 грн. + коммунальные

Характеристики
| Цена: | 23 000 грн. + коммунальные |
|---|---|
| № объекта: | 15-118-885 |
| Тип: | торговые площади, объект сферы услуг, прочее |
| Этаж: | 1 / 1 |
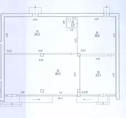
| Площадь: | 230 м2 |
| Дополнительно: | отдельный вход, парковка |
Адрес: Сумская, Сумы, Ковпаковский, Революції Гідності / Супруна, 21
Оренда приміщення вільного призначення, можна під Магазин, Виробництво, Зал, Майстерня.
Загальна площа приміщення 230 м.кв. Можлива оренда як два окремі приміщення 150 м.кв. та 80 м.кв.
Несучі стіни в середині приміщення відсутні, можливе перепланування.
Адреса Революції Гідності 21 (Супруна) на перехресті з вулицею Бельгійська (Газети правди).
Оремо стояча будівля, червона лінія, 2 входи по фасадній частині, 2 входи з задньої частини та зручний під'їзд для розвантаження / завантаження товару.
Підключена потужність електричної енергії 50 кВт, водопостачання та водовідведення, централізоване опалення відсутнє, що значно зменшує витрати на комунальні послуги.
100 грн. за м.кв.





















