Сдается объект Сумская, Сумы, Заречный, Харківська, 24 (№ 15-107-052)
Цена: 49 500 грн. + коммунальные

Характеристики
| Цена: | 49 500 грн. + коммунальные |
|---|---|
| № объекта: | 15-107-052 |
| Тип: | торговые площади |
| Этаж: | 1 / 1 |
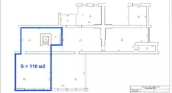
| Площадь: | 110 м2 |
| Дополнительно: | отдельный вход, парковка |
Адрес: Сумская, Сумы, Заречный, Харківська, 24
Перший поверх, окремий вхід, червона лінія. Широкий фасад, вітринні вікна, місце для розміщення реклами. Зручна транспортна розв'язка. Поряд знаходяться зупинки громадського транспорту, мережеві магазини (Економ-клас, Зообонус, Аврора), відділення ПриватБанку, аптеки, великий житловий масив. Центральне опалення по лічильнику, потужність електроенергії 35 кВт, вода та канализація.
Площа під оренду: 110 м2
Ціна оренди: 450 грн/м2
Агенція комерційної нерухомості КРАФТ
Вартість послуг агенції: 50% від місячної орендної плати одноразово









