Продается дом Сумская, Сумы, Заречный, Козацький пр-т (№ 22-404-076)
Цена: 35 999 $

Характеристики
| Цена: | 35 999 $ |
|---|---|
| № объекта: | 22-404-076 |
| Тип: | таунхаус |
| Этажей: | 2 |
| Спален: | 3 |
| Площадь дома: | 95 м2 |
| Участок: | 2 сот |
Адрес: Сумская, Сумы, Заречный, Козацький пр-т
НАЙДЕШЕВШИЙ ГАЗОФІКОВАНИЙ ТАУНХАУС В МІСТІ!
Продаж від власника 2х поверхового таунхауса в районі проспекту Козацького. Загальна площа будинку складає 95 кв м, має власний двір площею 0,02 га та власний заїзд.
Рік побудови: 2024
Тип покрівлі: металочерепиця
Тип стін: газоблок 400мм
Фасад: декоративна штукатурка «баранчик»
Проведені всі комунікації, а саме: централізоване водопостачання та каналізація, електрофікація (10 кВт) по постійному приєднанню та газ.
Побудований з використанням будівельних матеріалів високої якості, що гарантує довговічність та надійність житла.
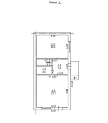
Перший поверх:
- прихожа
- кухня-студія площею 22, 7 кв м з можливістю виходу на передній двір
- спальна кімната площею 16, 5 кв м
- санвузол гостьовий площею 2, 6 кв м
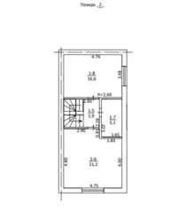
Другий поверх
- дві спальні кімнати площею 16, 6 кв м та 21, 2 кв м
- санвузол площею 5, 1 кв м
Перегляд можливий у зручний для вас час за попередньою домовленістю.


















