Продается дом Сумская, Сумы (№ 22-353-526)
Цена: 107 999 $

Характеристики
| Цена: | 107 999 $ | 
|---|---|
| № объекта: | 22-353-526 | 
| Тип: | дуплекс | 
| Этажей: | 2 | 
| Спален: | 3 | 
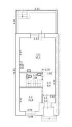
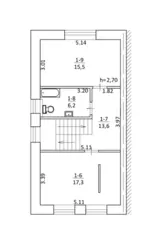
| Площадь дома: | 100 м2 | 
Адрес: Сумская, Сумы
На території навіс на 2 авто сарай теплиця погріб барбекю зона вбиральня
Дерева кущі озеленення рози
Доріжки вимощення бруківкою Керамейя
Індивідуальне оснащення приміщень













